聯系方式
021-6992-5088
19121986111@163.com
177-6510-7111
上海市松江區
變頻帶制動電機如何接線?接線詳細講解圖
文/ 發布于2020-12-24 瀏覽次數:16050
變頻帶制動電機使用起來方便調節,而且簡單節能,很多人不知道變頻帶制動電機如何接線,在大型電動機設備中都使用變頻帶制動電機,變頻帶制動電機機械精度高,可以高速運轉,而且絕緣結構耐壓,下面我們就來了解一下變頻帶制動電機如何接線!
變頻帶制動電機接線
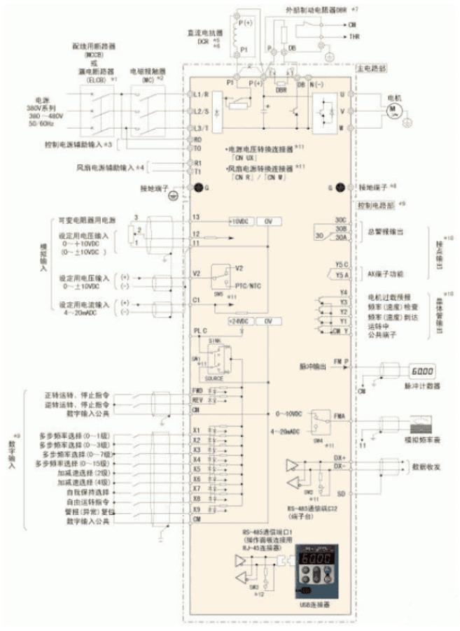
R、S、T為輸入,U、V、W為輸出,R、S、T分別為電源進電的輸進口,變頻器輸出端口為U、V、W。分別接到電動機上,當電機正常運行時,接入控制輸入正轉就會啟動,常開觸點就會因為閉合使電機正轉電流丟掉,電機就會接連。
變頻帶制動電機接線時,變頻器的參數、變頻器的頻率、變頻器的運行方式都需要設定,電流頻率、基本頻率、額定電壓都需要進行設置,根據不同的廠家和型號,對數據、功能、啟動頻率進行設置。
變頻帶制動電機都有配線維護,配線斷路器或者是漏電斷路器,就不能使用超過變頻帶制動電機標準功率的斷路器。
電源在變頻器中運行時,應在變頻器上設置相關標準的電磁接觸器,把螺線管設置在變頻器旁邊與浪涌并排吸收器連接。
(變頻帶制動電機接線圖2)
高功率因子電源感應轉換器,與RHC系列組合時運用,直流電抗器選配件時,拆下端子間的短路棒再進行聯接。
電機輸出功率為75kW以上的時候,應該連接直流電抗器選配件,當電源變壓器功率在500kVA以上,在變頻器額定功率的10倍以上時,連接直流電抗器。
在7.5kW以下的變頻器連接內置制動電阻器,連接外部制動電阻器時,要吊銷內置制動電阻器的聯接。
變頻帶制動電機可以逐漸減小頻率,使電機的轉速逐步下降,很多升降機、數控機床、提升機等機械慣性較大的設備中就會使用變頻帶制動電機,變頻帶制動電機接線具體要看變頻器,端子號有可能不一樣,控制端子就根據控制功能進行接線。


